COMMON SPACE
 
 
 
 
 
 
 
 
 
 
DSCF0473-21-3000px.jpg
 
 
 
 
 
 
 
 
 

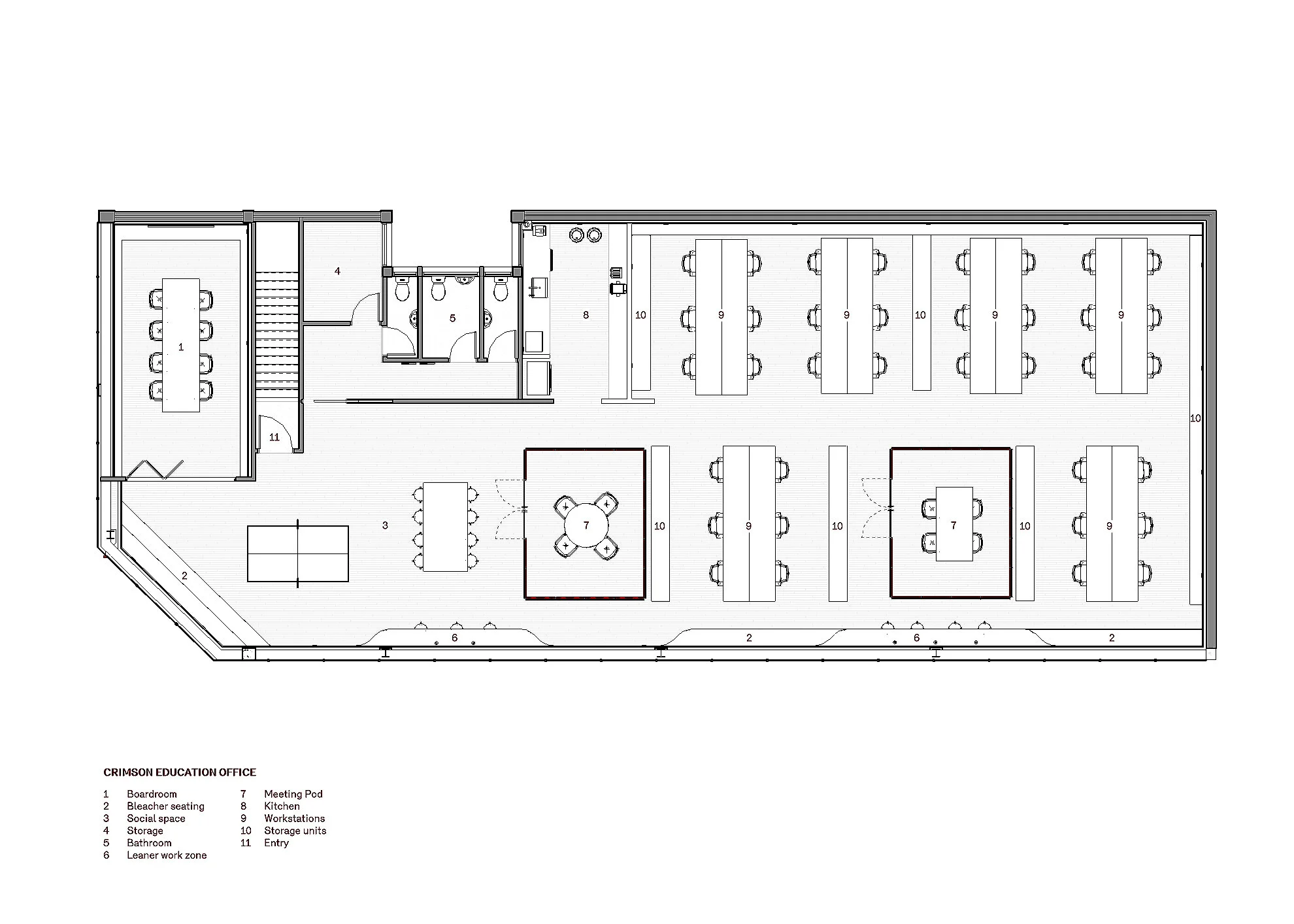
Crimson Education Office

A vibrant work space for a unique NZ company

 
 
 
 
 
 
 
 
 
darker red.jpg
 
 
 
 
 
 
 
 
 
 
light.jpg
 
 
 
 
 
 
 
 
 
 

Framed in a variety of interlinking spatial elements

 
 
 
 
 
 
 
 
 
 
green grey.jpg
 
 
 
 
 
 
 
 
 
 
 
 
 
 
 
 
 
 
 
 
 
 
 

Presented in a focused palette of materials

 
 
 
 
 
 
 
 
 
 
mid brown light 3.jpg
 
 
 
 
 
 
darker red.jpg
 
 
 
 
 
This office uses a delicate balance of hard and
warm materials, muted and strong colours, and simplicity and movement to represent an equally vibrant millennial and Gen Z workforce.
— Interior Awards 2018 - Workplace Category Winner - Judge's Comments
 
One clear idea well executed defines the space, providing a daring and interesting space. The craftmanship was excellent.
— DINZ Best Awards 2018 - Workplace Environments Gold Pin - Judge's comments

 

 
 
 
 
green grey.jpg
 
 
 
 
 
 
Crimson Education Office 1 - 1980px.jpg.jpg
 
 
 
 

 

 
 
 
 
 
 
DSCF0480-22-3000px.jpg
 
 
 

“Patrick was our architect and project manager for the office fitout at Crimson Education's Newmarket office. The project had tight budget and timeframe, so it was a big challenge. Patrick was a pleasure to work with and turned our ideas into reality. While not only designing a beautiful fitout, he also had to interview multiple contractors to find the right fit. We managed to build a functional yet elegant space for our team, and it really boosted the team's morale. The best surprise out of this project was winning multiple awards at the end of it!”

 

— Biran He, Chief Product Designer, Crimson Education

 
 
 
 
 
light.jpg
 
 
GIF_Pod-A_v1.gif
 
 
 
 
light.jpg
 
 
 
 

PROJECT DETAILS


Client

Crimson Education Limited


Patrick Loo, Biran He (Crimson Education),
Ana Paskaleff (Planting), Practec (Main Contractor), Otahuhu Engineering (Steel fabricator)

Project Team


Completed 2017

Status


Awards

Designer’s Institute of New Zealand Best Awards 2018
Gold Pin | Office & Workplace Environments

AGM Interior Magazine Awards 2018
Category Winner | Workplace Interiors (<1000m2)

Dulux Australia Colour Awards 2018
International Category Winner